
つつじが丘北2番町 5LDK NEW!
※写真をクリックすると、拡大写真を見ていただけます。
| 賃料 | 62,000円 | 所在地 | 名張市つつじが丘北2番町 |
|---|
| 沿線・最寄駅・所要時間 | 近鉄大阪線 名張駅 バス14分 バス停 北2番町 徒歩3分 |
|---|---|
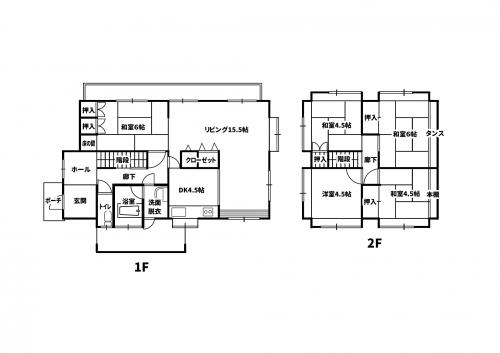
| 間取り | 5LDK |
| 専有面積 | 110.57m2 |
ここがポイント! ★ ペット可(大型犬可)! ★駐車場2台! ★小学校・スーパー近く!
| 種別 | 一戸建 | 築年月 | 昭和55年5月 | ||
|---|---|---|---|---|---|
| 物件階数 | 2階建 | 構造・総戸数 | 木造瓦葺2階建 | ||
| 管理費・共益費 | 込み | 駐車料 | 2台 | ||
| 敷金 | なし | 礼金 | なし | ||
| 保証金 | ー | 敷引 | ー | ||
| 住宅総合保険料 | 20,000円(2年間) | 入居可能日 | 相談 | ||
| 取引態様 | 仲介 | ベランダ向き | |||
| 設備 | 電気・上水道・集中浄化槽・集中プロパンガス 食洗機付きシステムキッチン、テレビモニター付きインターホン、ウォシュレット、エアコン1台、照明 |
||||
| 生活環境 | つつじが丘小学校549m、スーパーヤオヒコ664m | ||||
| 担当者からのコメント | 退去時ハウスクリーニング費用必要。 短期解約違約金:1年以内家賃2か月分 2年以内家賃1か月分 |
||||
その他の写真
名張駅前本店
〒518-0713
三重県名張市平尾3225番地8
TEL:0595-63-5430
FAX:0595-64-4104
営業時間:AM 9:30〜PM 5:30
定休日:水曜日
つつじが丘店
TEL:0595-68-8111
営業時間:AM 10:00〜PM 5:00
定休日:火・水曜日

お問い合わせ





















